Lavage de voiture libre-service Simply
Structure simple, flexible et efficace pour stations de lavage libre-service
Simply est un système de construction moderne conçu comme une structure couverte pour les stations de lavage libre-service et automatiques. Cette solution allie esthétique, fonctionnalité et simplicité de construction, ce qui en fait un choix idéal pour les investisseurs souhaitant une base fiable et durable pour leur station de lavage.
Caractéristiques principales de la station Simply
Application flexible
La structure Simply peut être utilisée comme espace couvert pour des stations de lavage libre-service classiques ou comme support pour l’intégration de systèmes de lavage automatiques dans l’un des boxes.
Protection contre les conditions climatiques
Une solution simple de couverture qui protège la station de lavage contre la pluie, la neige et le soleil, permettant un fonctionnement toute l’année.
Design moderne et fonctionnel
L’approche minimaliste de la construction met en valeur un aspect soigné et professionnel, créant l’image d’un espace commercial fiable et bien organisé.
Compatible avec différentes technologies
Simply peut être combiné avec différents systèmes de lavage et technologies proposés par Adriateh, selon les besoins des utilisateurs et des investisseurs.
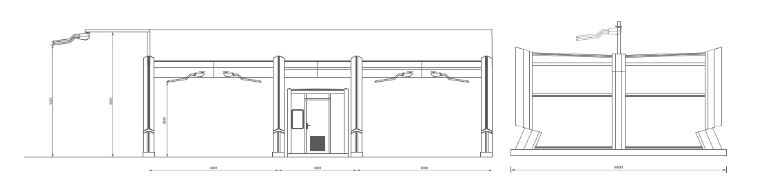
Taille
Largeur du box : 5 m
Profondeur : 6,8 m
Largeur du local technique : 3 m
Hauteur maximale du véhicule dans un box fermé : 2,7 m
Idéal pour les investisseurs
Grâce à son design flexible, Simply permet une construction rapide et économique de stations de lavage libre-service ou la modernisation de sites existants sans travaux de construction majeurs. Cette approche réduit les délais de réalisation et diminue les coûts d’investissement initiaux.
Facile à développer
La structure Simply simplifie le processus d’installation d’une station de lavage et permet aux investisseurs de se concentrer davantage sur l’exploitation et l’expérience client, plutôt que sur une mise en œuvre de construction complexe.
Éclairage de lave-auto
4 projecteurs LED par poste de lavage, qui s’activent automatiquement au crépuscule et s’éteignent à l’aube.
Calculez le revenu mensuel de votre station de lavage
Personnalisez votre station Simply avec des options supplémentaires
-
Choisissez des autocollants laminés durables pour les panneaux de séparation, les habillages de toiture, les bornes à jetons, les changeurs de monnaie ou les aspirateurs et personnalisez-les avec l’impression de votre choix.
Adaptez les autocollants aux couleurs et visuels de votre marque, avec des instructions claires d’utilisation et la mise en avant de tous les programmes de lavage et modes de paiement proposés.
Améliorez la sécurité et la visibilité grâce à des feux de signalisation indiquant l’occupation des postes de lavage, facilitant la circulation des véhicules, notamment lors d’un accès latéral.
Protégez les postes ouverts destinés au lavage de véhicules utilitaires avec une cloison anti-projections.
Obtenez un devis pour votre nouveau lave-auto en quelques clics.
Téléchargez notre catalogue pour plus d’informations:
Le lave-auto libre-service Simply est disponible en plusieurs modèles de machines :
Découvrez tous les modèles de lave-auto :








